関東の土木遺産 関東の土木遺産
土木遺産の概要 施設位置図 施設一覧
   
群馬県富岡市〜下仁田町(富岡市と下仁田町の行政界)
きゅうこうずけてつどうおにがさわきょうりょう
旧上野鉄道鬼ヶ沢橋梁
H27年度認定(2015)
1.名 称:
きゅうこうずけてつどうおにがさわきょうりょう
旧上野鉄道鬼ヶ沢橋梁
2.完成年:
1897(明治30)年
3.形式:
鉄道橋(旧上野鉄道時代(現上信電鉄)の橋梁)

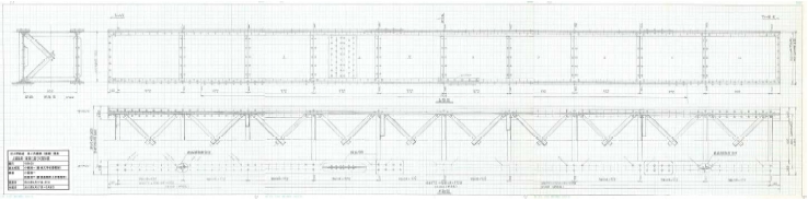
構造形式 2主桁プレートガーダー橋 橋長 L=10.0m W=1.0m

煉瓦積・切石積橋台 2基

4.設計者・施工者:
不明(施工請負:東京築地月嶋鉄工所と推測)
5.推薦理由:
@旧上野鉄道「鬼ヶ沢橋梁」の概要

旧上野鉄道は、高崎市〜(富岡市)〜下仁田町間をつなぐ軽便鉄道として都市部を除くと伊予鉄道(明治21(1888)年)に次ぐ2番目に早い私鉄として開業(明治30(1897)年)しており、開業時に富岡市と下仁田町の行政界を流れる大谷川(通称:鬼ヶ沢)に架けられた鉄道橋が「鬼ヶ沢橋梁」である。その後、大正13(1924)年の電化・広軌化による路線変更で「鬼ヶ沢橋梁」部分はバイパス新線が整備されたが、「鬼ヶ沢橋梁」は撤去されずに存置され現在も当時の姿ままで残されている。

A世界文化遺産「富岡製糸場と絹産業遺産群」と旧上野鉄道

平成26(2014)年に世界文化遺産となった「富岡製糸場と絹産業遺産群」は4つの遺産で構成されており、日本初の本格的製糸工場である富岡製糸場(富岡市)、近代養蚕農家の原型である田島弥平旧宅(伊勢崎市)、近代養蚕法の標準「清温育」を開発した養蚕教育機関である高山社跡(藤岡市)、冷気を利用した日本最大規模の蚕種貯蔵施設である荒船風穴(下仁田町)で構成される。日本近代化のエンジンとなり絹産業の発展に大きく貢献した富岡製糸場を核とした関連産業が、ネットワーク性を持って存在していた。そして、これらの産業活動を輸送面で支えたのが、明治5(1872)年の新橋・横浜間の鉄道開設を始めとした輸送近代化の進行であり、富岡製糸場(富岡市)と荒船風穴(下仁田町)の間近で開業し、物流面からネットワーク性をもって関与したのが旧上野鉄道である。

富岡製糸場(国宝・史跡)は、旧上野鉄道開業前の明治5(1872)年に富岡市で官営として操業開始したが、その後明治26(1893)年に明治政府により三井家に引き渡されることとなる。そして同年、その三井家が中心となって計画した鉄道が旧上野鉄道であり、明治30(1897)年には高崎市〜(富岡市)〜下仁田町間が全線開通となる。当時の上野鉄道は、富岡製糸場への資材供給はもとより、富岡製糸場から横浜港を経て海外へ輸出される生糸輸送を担った。

また、荒船風穴(史跡)は、旧上野鉄道開業8年後の明治38(1905)年に下仁田町に建設された蚕種貯蔵施設(蚕種紙で保存)だが、日本全国を相手に事業を展開し、それまでは年内1蚕(春蚕中心)であった養蚕を、蚕種保存技術により年内2蚕、年内3蚕を可能とする一方、夏秋蚕が農閑期の作業と重なり、急速に普及することとなるなど、全国の養蚕多回数化に貢献した。風穴利用による技術革新が明治期後半の蚕増産をもたらすこととなるが、その普及を可能としたのが物流の近代化:鉄道であり、間近な鉄道施設として、蚕種紙輸送の大きな役割を担ったのが旧上野鉄道である。

B「鬼ヶ沢橋梁」の特徴(H27.4.17、27小西信州大学名誉教授による現地調査レポートに加筆)

「軌間2ft6in(762mm)の軽便鉄道規格で明治30年当時の橋梁の現存例は希少であり注目に値する。

(橋台)地元産の椚(くぬぎ)石を加工した隅石を配した煉瓦積みで、造形的にも美しい。明治時代の軽便鉄道の遺構として、本格的な造りの貴重なものであり、遺産としての価値は疑いがない。

(橋桁)明治32(1899)年頃の写真(「上信電鉄百年史」より)には、鬼ヶ沢橋梁(プレートガーダー橋)を渡る軽便鉄道の様子が残されている。現存する橋桁は、軌間762mmの軽便鉄道規格のものに違いないがメートル制で製作されているようであり、常識的には明治30(1897)年のものとは信じがたい。真相は不明であるが、改軌・電化した大正13(1924)年当時もフィート・ポンド制時代であり、改築した橋梁の桁もすべてフィート・ポンド寸法のものであった。現存の鬼ヶ沢橋梁が初代橋梁そのものだとすると、フィート・ポンド時代にメートル単位で製作された大変珍しいものということになる。

一般的に、土木・機械分野などの工業規格がフィート・ポンド制からメートル制に移行するのは昭和3(1928)年のことであるが、大正13(1924)年に廃止路線となった橋桁を、昭和3(1928)年以後に鉄道会社が自ら、わざわざ軽便鉄道規格で取り替えるとは考えにくく、「明治30(1897)年開業当時の軽便鉄道用のプレートガーダーではない」とする証拠もない。写真からは橋台は、現存のものそのものであり、桁も、廃線後に同じ寸法の新桁にかけ直す理由はないことから、現存のものが写真に写っている最初からの桁とするのが,最も筋が通る判断となる。

(諸元等)桁長10000mm、桁高(※)750mm、(桁高(※)は、山形背面間で750mm)主桁中心間800mm、カバープレート幅200m、桁全幅1000mm

(その他)補剛材の形状および取り付け方に特徴がある。明治35年ごろまでに建設されたプレートガーダー橋は、「ポーナル(パウナル)型」と呼ばれ、補剛材上下端部を曲げ主桁フランジにリベットで固定することを特徴とする英国式が多い。それ以降は、製作の合理化を目的に、補剛材は曲げずにフィラーを用いて主桁フランジアングルにリベット固定する米国式に移行する。鬼ヶ沢橋梁の補剛材は、いずれにも該当せず、上下端を切り欠き、主桁フランジあるいはアングルに固定しない構造となっている。また、この形状は当時の官設鉄道の標準設計には登場しない形状でもあり、大きな特徴である。

6.所在地:
群馬県富岡市〜下仁田町(富岡市と下仁田町の行政界)
7.管理者:
上信電鉄(株)
8.特記事項:

富岡市指定重要文化財(H19.9.29)、下仁田町指定重要文化財(H18.11.29)

9.PR方法:
  • @上信電鉄(株)の主催で「鬼ヶ沢橋梁をはじめとした旧上野鉄道時代の土木遺産を車中解説する企画」を遺産指定を契機に定期開催し「鬼ヶ沢橋梁」前で車速を落とし音声解説するなどする。
  • A群馬県と関連市町村で、世界文化遺産「富岡製糸場と絹産業遺産群」とともに県内の絹遺産をぐんまの「たからもの」として、「ぐんま絹遺産」登録(H27.1.1現在84件)しており、「鬼ヶ沢橋梁」も登録されている。それらをネットワーク化することで地域振興、観光、文化的事業などに役立たせる取組を進めることとしており、遺産指定を契機に先ず、保存措置について検討着手する。
10.連絡先:
上信電鉄株式会社 鉄道部長 田代宜宏
〒370-0848 群馬県高崎市鶴見町51番地
TEL:027-323-8073(代) FAX:027-323-8650
【位置図】
【拡大図】
【図面(鈑桁)】 画像:図面(鈑桁)
【現況写真】(全景) (煉瓦積橋台:コブ出し仕上げの椚石を配置) 画像:【現況写真】
(補剛材:両端を斜めに切断し、腹板のみに取付)
【当時の写真】
●明治32年頃の鬼ヶ沢橋梁(「明治32年頃の蒸気機関車」:上信電鉄百年史より) 画像:【当時の写真】
(右岸橋台)(左岸橋台)
※鬼ヶ沢下流側より撮影
●鬼ヶ沢橋梁の現在の様子(H27年4月撮影)
画像:写真 鬼ヶ沢橋梁の現在の様子
(左岸橋台)(右岸橋台)
※鬼ヶ沢上流側より撮影(注意:明治32年頃の上記写真と撮影方向が逆)
前を見る 前を見る 次を見る 次を見る
Copyright (c)2004 jsce-kanto All Rights Reserved.