関東の土木遺産 関東の土木遺産
土木遺産の概要 施設位置図 施設一覧
   
山梨県
さえきばし
佐伯橋
R2年度認定(2020)
1.名 称:
さえきばし
佐伯橋
2.完成年:
昭和2 年(1927 年)
3.形式等:
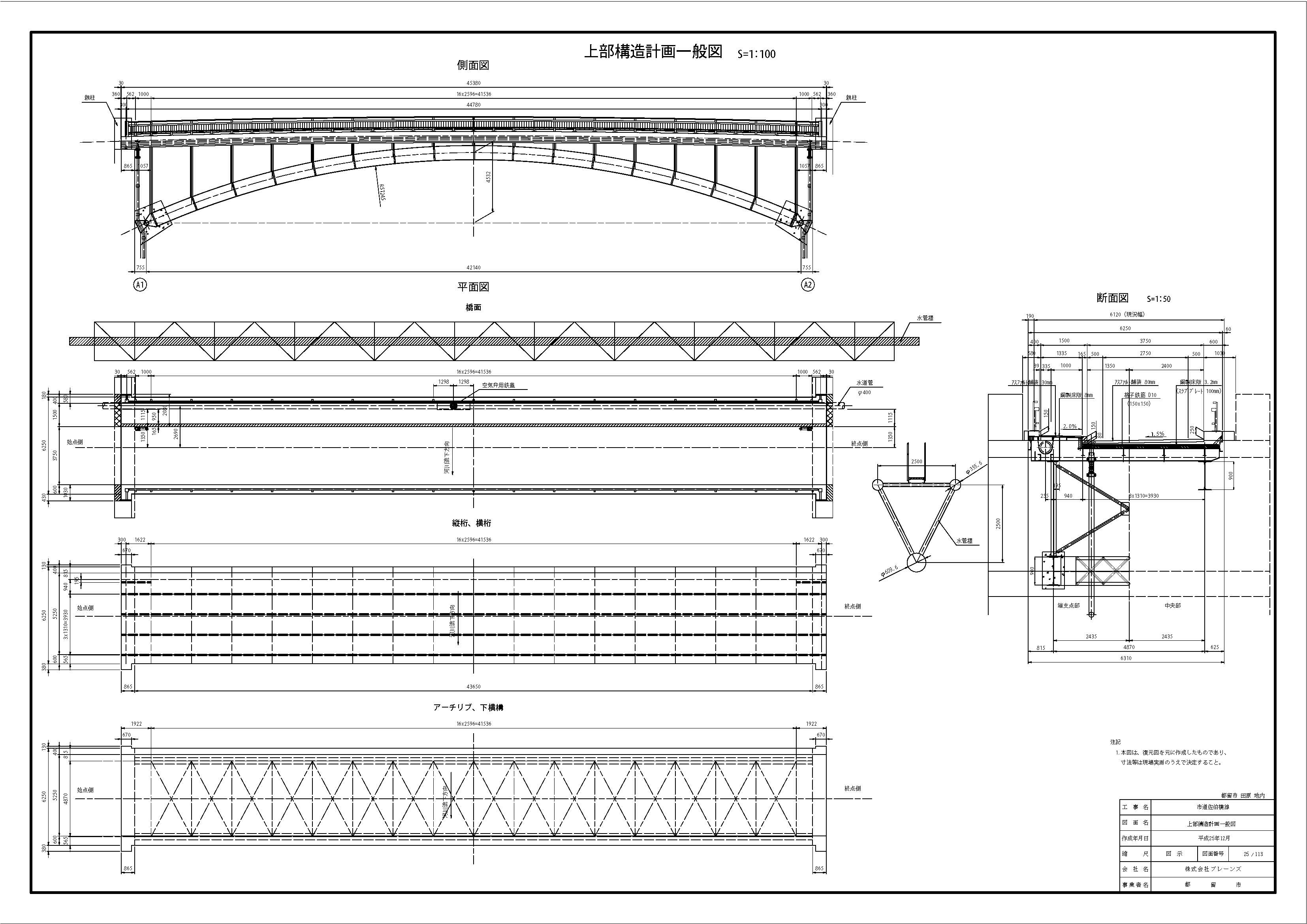
鋼ソリッドリブ・アーチ橋(上路式)
L=45m、W=6.3m (補修設計図面より)
4.推薦理由:

佐伯橋は山梨県都留市田原と十日市場を分かつ桂川を渡河する鋼ソリッドリブ・アーチ橋である。周辺は8,000年前の富士山の噴火により大月市猿橋付近まで流れた溶岩によって形成された地域であり、桂川による浸食で柱状節理がむき出しの渓谷となっている場所に架橋したものである。すぐ上流には落差のある「田原の滝」と呼ばれる滝もある。

山梨県内の戦前完成の上路式鋼ソリッドリブ・アーチ橋は、佐伯橋と昭和7年竣工の新猿橋の2橋を確認したが、他には見当たらない。国道橋としての役割は昭和41年に隣接して架けられた国道139号の佐伯橋に譲り、現在は市道として渓谷の眺望場所として楽しまれている。
平成28年に数年かけて実施した耐震補修工事が終了し、損傷していた上路部や高欄は新しく交換されたが、アール・デコ調の親柱、上部工の補修箇所以外は建設時の材料が残っている。また補修にあたっては大戦中の供出で交換されていた高欄の柱の間隔を、上部工垂直部材の配置に合わせるといった戦前のデザインを踏襲する工夫も成されている。部材の接合は補修にあたってもリベットによる接合としている。

佐伯橋付近は、かつて松尾芭蕉が立ち寄り、白くしぶきを上げて流れる田原の滝の様子を「勢ひあり 氷消えては 瀧津魚(たきつうお)」と読んだ景勝地であり、すぐ脇には地元の農業に大きな役目を果たした谷村大堰が流れるなど、都留市もこれまで佐伯橋を含む田原の滝周辺を公園化し観光名所として整備を進めてきた。
特に令和元年度には、富士山・富士五湖エリアという強力な観光資源に隣接しながらも東京圏からの通過地点となっている同市の観光を再生すべく、「つる観光戦略」を策定した。この中でも田原の滝公園は「平成の名水100選」に選ばれた10ヵ所以上ある付近の湧水群の散策の拠点と位置づけ、四季折々の美しい景色を撮影するフォトスポットとして広くPRすることとしている。令和2 年度には田原の滝のライトアップを事業化する予定だが、ライトアップされた田原の滝のビュースポットとして佐伯橋は大きな役割を果たすことになる。

耐震補強がなされたものの、古き地域の面影を残す自然環境とそれを渡河し地域の交通を支えた鋼アーチ部材が今も残る佐伯橋を、選奨土木遺産として推薦するものである。

5.所在地:
都留市田原四丁目~十日市場地内
6.設計者:
不明
7.施工者:
鋼材製作:月島機械
8.管理者:
都留市(選奨物件として調査することは了承済み)
9.特記事項:
  • 補修工事履歴
     ■下部基礎部:2014年5月、空洞充填工事実施
     ■補修耐震工事:2016年5月完了
      ・上部工:床板、舗装、高欄など交換
      ・下部工:損傷箇所の修繕
  • (旧)国道139号
  • 現在の国道139号の橋は横に新設されており、旧橋は市道として保存。
  • 橋詰めに駐車スペース、ポケットパーク、展望台あり。
  • すぐ横には田原神社、谷村大堰(寛永16 年)があり、歴史観光スポット。
  • 2020 年度からの「つる観光戦略」の推進事業の中で、佐伯橋を含めた「名勝 田原の滝」周辺の観光拠点化においても、重要な役割を果たす。
  • 2800 選におけるランク:C
10.PR 方法:
授賞式の実施、隣接公園などでのPR
11.連絡先:
都留市 産業建設部 建設課 道路担当 相澤様(TEL:0554-42-1111(代表))

下流側全景

上流側全景

位置図(広域)
(大月市から富士五湖方面に向かう国道189 号沿い)

位置図(拡大)
(中央道都留インターチェンジから車で10 分)

橋梁近景

親柱

橋梁近景

橋梁近景

橋梁近景

橋梁近景

橋梁近景

橋梁近景

案内板

田原の滝

ポケットパーク

谷村大堰の碑

田原の滝公園

田原の滝公園

田原神社

上部構造計画一般図

計画平面図

上部構造補修一般図
前を見る 前を見る 次を見る 次を見る
Copyright (c)2004 jsce-kanto All Rights Reserved.