 |
| 神奈川県 |
| よこはまこうしんこうふとうかんとうだいしんさいふっこうがんぺきぐん |
|
| 横浜港新港埠頭 関東大 震災復興 岸壁群 |
|
|
| R2年度認定(2020) |
 |
- 1.名 称:
-
| よこはまこうしんこうふとうかんとうだいしんさいふっこうがんぺきぐん |
| 横浜港新港埠頭 関東大 震災復興 岸壁群 |
- 2.完成年:
- 1925年(大正14)
- 3.形式等:
- ①横浜港新港埠頭地区 7 号・ 8 号岸壁
重力式岸壁下部水中Co 基礎 ケーソン構造(-8.4m)T14.3 完成
- ②横浜港新港埠頭地区左埠頭護岸(先端海壁)
重力式岸壁下部基礎石方塊4段積(-8.4m)T14.3完成
- ③横浜港新港埠頭地区3号・4号護岸
重力式護岸下部方塊2段間知石正積5段T13.9 完成
- 4.設計・施工:
- 内務省横浜土木出張所
- 5.推薦理由:
- 関東大震災1923年(大正12年9月1日)により横浜港新港埠頭は壊滅的な被害を受けたが、大正12年11月復旧着手、大正14年3月に竣工という短期工事を実施した、日本で初めての近代港湾復旧事業である。
横浜港新港埠頭は、1905年(明治38)に完成した日本で初めての埠頭方式岸壁であり、陸上施設(荷役施設、倉庫、鉄道、道路、税関)を整備した日本で初めての近代港湾埠頭である。新港埠頭は1923年9月1日の関東大震災により岸壁・物揚場および護岸のほとんどが海側に倒壊し、陸上部の上屋・道路・鉄道の大部分が甚大な被害、岸壁上の荷役機械が海没する被害にあった。新港埠頭は日本の外国貿易を扱う港として早期復旧が計画され、岸壁・護岸は震災50日後の10月21日から復興工事を開始し1925年3月に復旧した、本復興工事は、当時最先端技術である水中コンクリート技術や無堤函ケーソン工法の採用、海中に没した船舶の掃海技術、海中障害物撤去技術の先駆けであり、復旧断面は耐震的にすることや、施工は、迅速を旨とするなど、現在の震災復興工事の規範とも言える国内で初めての近代港湾震災復興事業である。
昭和・平成に入り、当該施設前面に桟橋を新設し、一部を埋立てたことで幾つかの施設は失われたが、当時の岸壁の多くは新設桟橋の土留部として目視は出来ないが存置している。今回,推薦する構造物は,令和元年に整備した旅客ターミナルの前面岸壁など震災復興当時のままの岸壁が残されているものである 。
- 6.所在地:
- 神奈川県横浜市中区新港1丁目
- 7.管理者:
- 関東地方整備局 (所有者:管理委託者)
横浜市(港湾管理者:管理受託者)
- 8.PR方法:
- 1.横浜港新港埠頭岸壁等の維持管理を行い「稼働遺産」として使用を継続。
2.港湾緑地ハンマーヘッドパーク、赤れんが倉庫と連動して、市民の立ち入ることが可能な関東大震災後復興を果たした一連の港湾施設として公開を検討。
3.近代化遺産としての価値を説明するために、新設旅客船ターミナル内や横浜港のイベントにおいてパネル展示などを実施する。
- 9.連絡先:
- 国土交通省 関東地方整備局 横浜港湾空港技術調査事務所
〒221-0053 横浜市神奈川区橋本町2-1-4 電話番号:045-461-3892
FAX番号:045-461-3887
Eメール:
担当者名:高橋 康弘
|
|
|

新港埠頭の全体
|

左埠頭海壁(中央はハンマーヘッドクレーン)
|

7号・8号岸壁
|

左から4 号護岸,4号物揚場(上面改修),3号護岸
|

4号護岸
|

位置図
|

横浜港新港埠頭完成時(1905 年)の竣工平面図
|

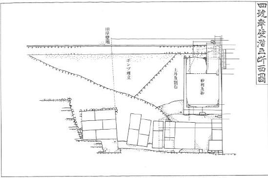
岸壁及桟橋竣功平面図(横浜港震害復旧工事報告:昭和4 年 内務省横浜土木出張所)より)
|

4号岸壁潜函断面図(横浜港震害復旧工事報告:昭和4年内務省横浜土木出張所)より)
|
|
 |
 |
|
|
 |